High-end hotel-style chalets | Architectural design and facades |

High-end hotel-style chalets | Architectural design and facades |

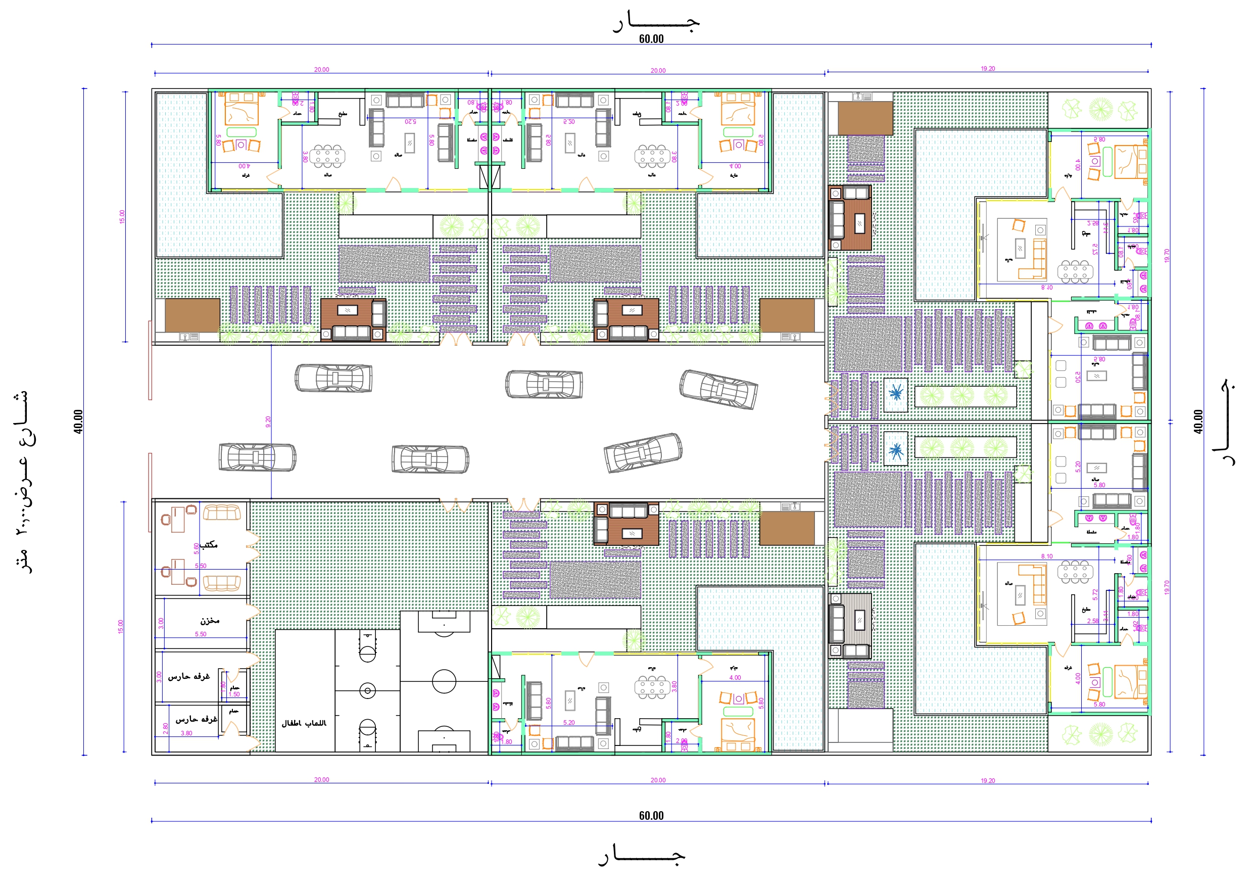
📌 Scope of Work

Comprehensive architectural design for a collection of highly private hotel chalets, including:

General site planning and internal circulation.

Design of residential units with consideration for outdoor spaces.

Design of swimming pools, outdoor seating areas, children’s play areas, and green pathways.

Preparation of execution drawings for floor plans and elevations.

✨ General Architectural Description

The project offers a collection of upscale chalets in a modern style. The chalets are distributed along a central circulation and vehicular axis, with each unit featuring independent outdoor spaces that provide complete privacy.

The design is based on:

Simple architectural forms in neutral colors.

Extensive glass openings to enhance the connection between indoors and outdoors.

A direct visual connection from the seating areas to the private swimming pools.

Organized walkways connecting the units, front entrances, and shared amenities.

The use of plants and green pathways to create a tranquil resort atmosphere.

🏡 Chalet Interior Description

Based on the floor plans in the document, the essence of the interior experience can be summarized as follows:

A main lounge opening onto the garden and pool with panoramic views.

An integrated dining and living area designed to serve groups of guests and families.

Comfortable bedrooms with en-suite bathrooms offering enhanced privacy.

A fully equipped kitchen catering to hotel needs and daily hospitality.

Practical interior spaces based on a clear flow that separates different uses.

🌿 Facade and Outdoor Space Analysis

The images (pages 1–2) show a design that focuses on horizontal elements and simple masses, highlighting:

The harmony of the front masses achieved through varying ceiling heights.

Covered outdoor seating areas that provide privacy and comfortable shade.

Stone and green pathways that facilitate movement and add aesthetic value.

Cleverly distributed children’s play areas at the rear (as shown on page 4).

The distribution of swimming pools on either side gives each guest a sense of seclusion and tranquility.

The use of transparent pergolas above some seating areas enhances the modern feel.

🏆 Project Summary

A well-planned layout that makes optimal use of the land for independent chalets.

A contemporary architectural style that reflects a sophisticated hotel identity.

High privacy for each unit through the distribution of blocks and green spaces.

A well-organized central walkway facilitates the movement of guests and vehicles.

Outdoor seating areas and swimming pools designed to elevate the experience and increase investment appeal.

Children’s play areas and supporting facilities enhance the value for families.

A balanced architectural vision that combines functionality with comfort and visual appeal.

Project Location

الرياض

Project Features

Project Photos